This charming cottage-style house plan offers approximately 1,819 square feet of thoughtfully designed living space with three bedrooms, two full bathrooms, and one half bathroom. Blending cozy cottage character with modern design features, this home is ideal for families, downsizers, or anyone seeking a warm and inviting residence with functional spaces and a timeless aesthetic. ([houseplans.net](https://www.houseplans.net/floorplans/03401402/cottage-plan-1819-square-feet-3-bedrooms-2.5-bathrooms))

Exterior Design
The exterior showcases classic cottage appeal with a welcoming covered front porch, balanced rooflines, and charming architectural details that create strong curb appeal. Its proportionate footprint makes this plan suitable for suburban, cottage community, or countryside lots where relaxed, picturesque styles are desired. Durable siding, gable accents, and trim detailing add visual interest while promoting a cozy, homey atmosphere. ([houseplans.net](https://www.houseplans.net/floorplans/03401402/cottage-plan-1819-square-feet-3-bedrooms-2.5-bathrooms))
Interior Layout Overview
Inside, the layout emphasizes a comfortable flow between shared spaces while providing privacy for sleeping areas. The design uses thoughtful room placement and generous windows to enhance natural light, creating a bright and welcoming interior. Practical circulation and connected living spaces support both everyday living and hosting guests with ease. ([houseplans.net](https://www.houseplans.net/floorplans/03401402/cottage-plan-1819-square-feet-3-bedrooms-2.5-bathrooms))

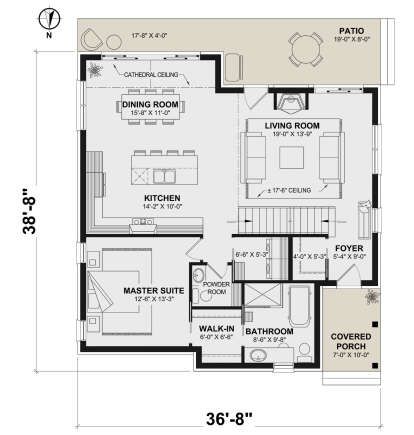
Main Living Area
The heart of the home features an open great room that flows directly into the dining area and kitchen — fostering interaction between family members and guests. Large windows and detailed trim work help bring natural light into the space, enhancing its cozy feel. The kitchen is positioned for functional workflow and includes ample counter space and cabinetry for meal prep and storage. ([houseplans.net](https://www.houseplans.net/floorplans/03401402/cottage-plan-1819-square-feet-3-bedrooms-2.5-bathrooms))
The adjacent dining area offers ample space for family meals or entertaining, with easy access to both the kitchen and great room. Strategic sightlines make shared living comfortable and cohesive. ([houseplans.net](https://www.houseplans.net/floorplans/03401402/cottage-plan-1819-square-feet-3-bedrooms-2.5-bathrooms))
Bedrooms
This cottage plan includes three comfortable bedrooms. The primary suite serves as a private retreat and features access to a full bathroom with thoughtful layout and fixtures. Its location — slightly separate from the secondary bedrooms — enhances privacy and daily comfort. ([houseplans.net](https://www.houseplans.net/floorplans/03401402/cottage-plan-1819-square-feet-3-bedrooms-2.5-bathrooms))
The two additional bedrooms are well-sized and positioned near the second full bathroom, making them suitable for family members, guests, or flexible use as home offices, hobby rooms, or guest retreats. Large windows and pleasant sightlines help each room feel light and comfortable. ([houseplans.net](https://www.houseplans.net/floorplans/03401402/cottage-plan-1819-square-feet-3-bedrooms-2.5-bathrooms))
Bathrooms
This home features two full bathrooms and one half bathroom. The primary bathroom serves the owner’s suite with an efficient layout and comfortable fixtures, while the secondary full bathroom supports the additional bedrooms and guests. The half bathroom, conveniently located near shared spaces, enhances daily convenience and accessibility. ([houseplans.net](https://www.houseplans.net/floorplans/03401402/cottage-plan-1819-square-feet-3-bedrooms-2.5-bathrooms))
Functional Features
- Open living spaces: Seamless flow between great room, dining, and kitchen enhances daily comfort. ([houseplans.net](https://www.houseplans.net/floorplans/03401402/cottage-plan-1819-square-feet-3-bedrooms-2.5-bathrooms))
- Main-floor bedrooms: All sleeping spaces located on one level for convenience and accessibility.
- Covered front porch: Adds outdoor living space and enhances curb appeal. ([houseplans.net](https://www.houseplans.net/floorplans/03401402/cottage-plan-1819-square-feet-3-bedrooms-2.5-bathrooms))
- Efficient kitchen layout: Supports practical meal prep and storage. ([houseplans.net](https://www.houseplans.net/floorplans/03401402/cottage-plan-1819-square-feet-3-bedrooms-2.5-bathrooms))
- Half bathroom convenience: Perfect for guests and day-to-day use. ([houseplans.net](https://www.houseplans.net/floorplans/03401402/cottage-plan-1819-square-feet-3-bedrooms-2.5-bathrooms))

Dimensions and Structural Details
The home provides approximately 1,819 square feet of heated living space, all arranged on a single level to promote efficient circulation and accessibility. Conventional framing techniques and a practical roof design support smooth construction and long-term durability. Foundation options such as slab, crawlspace, or basement may be selected based on regional needs, builder preference, and site conditions. ([houseplans.net](https://www.houseplans.net/floorplans/03401402/cottage-plan-1819-square-feet-3-bedrooms-2.5-bathrooms))

Estimated Building Cost (USD)
Construction costs vary depending on materials, finishes, labor rates, and site conditions. Using typical mid-range pricing as a general benchmark:
- Low estimate: ~ $218,280 (assuming ~$120 per sq ft × 1,819 sq ft)
- High estimate: ~ $327,420 (assuming ~$180 per sq ft × 1,819 sq ft)
Actual construction costs will depend on customization options, finish quality, site preparation, and regional construction market conditions, but this cottage plan offers a cozy and functional living space with enduring style and appeal. ([houseplans.net](https://www.houseplans.net/floorplans/03401402/cottage-plan-1819-square-feet-3-bedrooms-2.5-bathrooms))












