This compact and highly efficient cottage-style home offers approximately 462 square feet of heated living space with one bedroom and one full bathroom. Designed as a single-story residence, this plan is ideal for minimalists, vacation retreats, guest houses, or small-lot living. Its narrow footprint and smart layout make it both practical and affordable while maintaining a cozy and inviting atmosphere. 0
Exterior Design
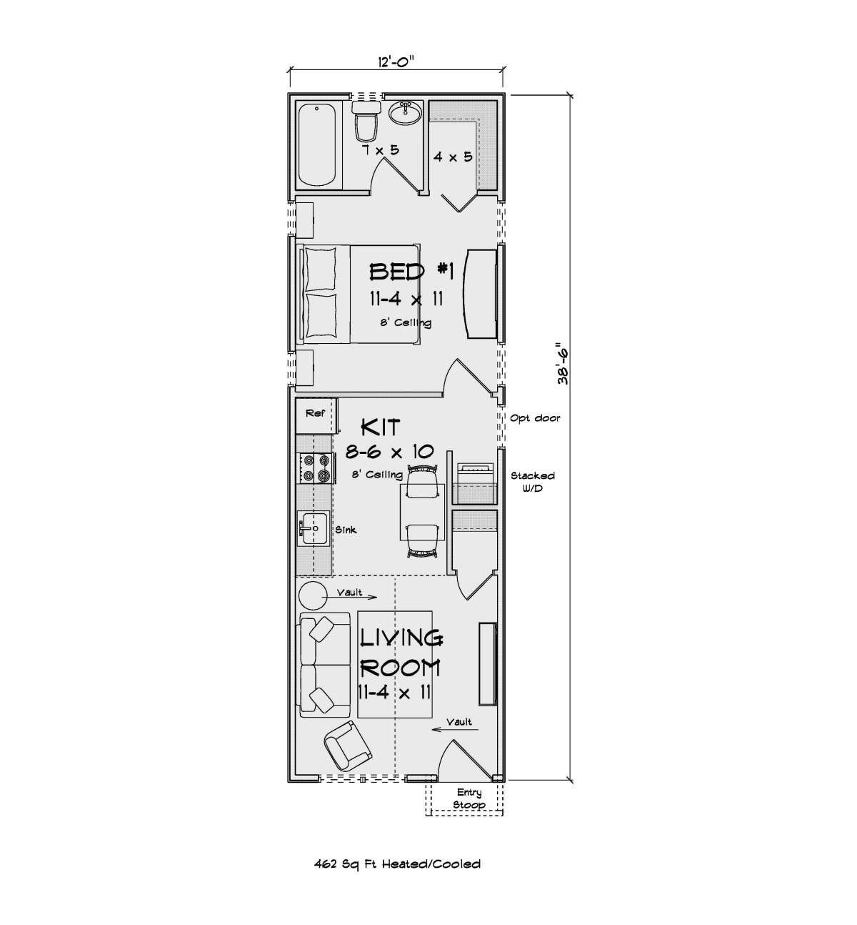
The exterior reflects a simple yet charming cottage aesthetic with a narrow footprint measuring approximately 12 feet wide and 38 feet 6 inches deep. This slim design makes it perfect for tight or narrow lots while still offering a complete and functional home. 1

The clean roofline, featuring an 8:12 pitch, adds character and ensures durability while promoting efficient water drainage. Its modest scale keeps construction costs low while maintaining visual appeal.
Interior Layout Overview
All 462 square feet of living space is arranged on one level, maximizing efficiency and ease of movement. Every square foot is carefully utilized to eliminate wasted space and provide essential living functions. 2
The layout is designed to feel open despite its size, making it comfortable for daily living while maintaining simplicity.
Main Living Area
The main living area combines the living room, kitchen, and dining space into a compact and cohesive environment. This open-concept arrangement helps the home feel more spacious and allows natural light to flow throughout.
The kitchen is designed for efficiency, offering essential counter space and storage while remaining integrated with the living area for convenience.

Bedroom
The home includes one bedroom, providing a private and comfortable sleeping area. It is located on the main floor and often includes a walk-in closet, adding valuable storage within a compact design. 3
This bedroom is ideal for a single occupant or couple and works well in both primary and secondary living situations.
Bathroom
The design includes one full bathroom, positioned for easy access from both the bedroom and the main living area. This ensures convenience while maintaining privacy. 4
Functional Features
- Single-story layout: All living areas are on one level for simplicity.
- Compact footprint: Ideal for narrow or small lots. 5
- Open-concept design: Maximizes usable space and improves flow.
- Walk-in closet: Adds storage to the bedroom.
- Main-floor laundry: Enhances everyday convenience. 6
- Economical design: Keeps construction costs relatively low.
Garage and Additional Space
This cottage design does not include a garage, helping to maintain its compact size and affordability. However, the layout allows for the addition of a detached garage or storage structure if needed.

Dimensions and Structural Details
The home measures approximately 12′ in width and 38’6″ in depth, with an overall height of about 12 feet 6 inches. Interior ceiling heights reach around 8 feet, creating a comfortable living environment within a compact structure. 7
The structure is typically built using conventional wood framing and is well-suited for slab or crawlspace foundations depending on site conditions.


Estimated Building Cost (USD)
Construction costs vary depending on materials, labor, and location. Using common mid-range estimates:
- Low estimate: ~ $55,440 (assuming ~$120 per sq ft × 462 sq ft)
- High estimate: ~ $83,160 (assuming ~$180 per sq ft × 462 sq ft)

This cottage house plan offers a perfect blend of simplicity, affordability, and efficiency. Its ultra-compact size, smart layout, and versatile use make it an excellent option for those seeking a small yet functional living space.
“`8












