This contemporary ranch home offers approximately 2,394 sq ft of thoughtful, single-story living that blends modern design with functional flow. Featuring 4 bedrooms, 3 full bathrooms, and a 3-car attached garage (~762 sq ft), this plan emphasizes a light, open interior with clean lines, strong indoor-outdoor connections, and practical living spaces that support everyday comfort and family life. 0

Exterior & Curb Appeal — Modern Ranch Aesthetic
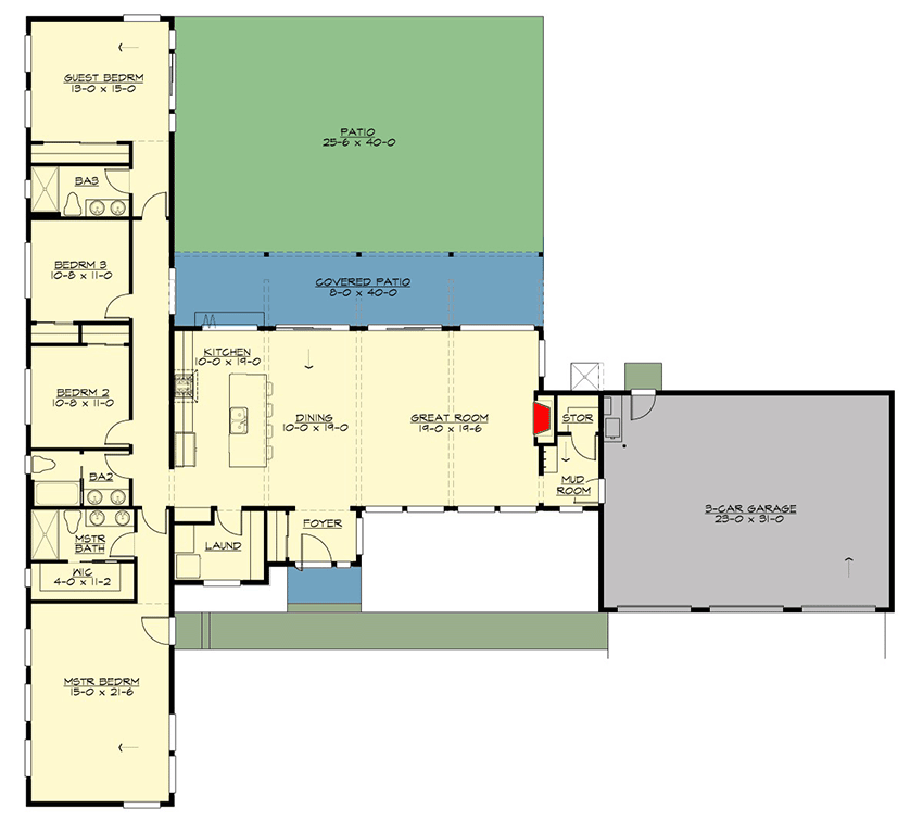
The exterior showcases a contemporary ranch profile with a low, horizontal roofline and a shed-style roof element that gives it modern flair. 0 Clean architectural lines and a balanced façade present an understated yet impactful look that fits beautifully on both suburban and country lots. 0 Large windows and sliding glass doors along the rear bring natural light into the core living space and create a strong connection with outdoor living areas. 0

Open Concept Living — Heart of the Home
At the center of this home is a light and airy open-concept living space that seamlessly integrates the great room, kitchen, and dining area. 0 High ceilings and expansive glazing help fill the interior with daylight, making the space feel larger and more inviting. 0 This layout encourages connection, whether you’re relaxing with family, preparing dinner, or entertaining guests — everyone feels part of the action. 0

Kitchen Designed for Life & Entertaining
The kitchen features a sizable island with seating for four, making it a natural hub for casual meals, morning coffee, or gathering with friends. 0 With plenty of counter space and thoughtful storage nearby, this kitchen is both stylish and highly functional. 0 The adjacent laundry room sits conveniently close, helping streamline household chores without interfering with the home’s social spaces. 0

Bedrooms & Private Retreats
Four bedrooms are arranged along the left side of the home, creating a distinct private wing away from the central living areas. 0 The spacious master suite sits at the front, offering a walk-in closet and a well-appointed ensuite bathroom with four fixtures for everyday convenience and comfort. 0 The secondary bedrooms include two identical rooms with large picture windows and access to a shared hall bath, while a rear-facing bedroom suite provides a welcoming guest retreat with easy access to outdoor views.

Mudroom & Practical Spaces
The three-car attached garage opens into a practical mudroom equipped with built-in hooks and storage — perfect for organizing outdoor gear, backpacks, coats, and shoes. 0 This thoughtful transition zone helps keep the main living areas tidy while supporting busy family routines. 0
Indoor-Outdoor Connection & Light
Sliding doors and a series of large windows line the rear wall of the home’s central living space, integrating outdoor areas with the interior and inviting natural light deep into the open plan. 0 This connection encourages outdoor enjoyment — whether it’s morning breakfast on the patio, backyard barbecues, or afternoon relaxation — while keeping the interior bright and uplifting.

Structure & Specs Summary
- Total Heated Area: ~2,394 sq ft 0
- Bedrooms: 4 0
- Bathrooms: 3 full 0
- Stories: Single level 0
- Garage: 3-car attached (~762 sq ft) 0
- Foundation: Standard crawl 0
- Exterior Walls: 2×6 construction 0
- Dimensions: ~94′ 0″ wide × ~85′ 6″ deep; max ridge ~18′ 1″ 0
- Ceiling Height: 10′ first floor 0
- Style: Contemporary / Modern / Northwest / Ranch 0
- Special Features: Open concept core, shed roof detail, integrated indoor-outdoor spaces, clustered bedrooms, mudroom. 0
Lifestyle Highlights — Connected Living & Calm Retreats
- Seamless open living: The central great room, kitchen, and dining flow without barriers, fostering connection and ease of movement. 0
- Natural light and views: Rear windows and sliding doors bring daylight deep into the heart of the home. 0
- Private bedroom wing: Bedrooms are grouped for quiet and privacy away from social spaces. 0
- Accessible one-story living: Single-floor design supports long-term livability with modern conveniences. 0
- Practical everyday zones: Mudroom and laundry access from the garage keep transitions smooth and organized. 0
Estimated U.S. Build Cost (USD)
Assuming mid-range finishes and typical U.S. residential construction costs of about **$180–$260 per sq ft**, building this ~2,394 sq ft plan suggests a rough estimate of **$431,000–$623,000 USD** (excluding land, site preparation, permits, utilities, and regional cost variations). 0
Why This Contemporary Ranch Plan Works
This contemporary ranch plan marries clean, modern aesthetics with a warm, livable layout that embraces open concept living without sacrificing privacy. From its light-filled interiors and seamless indoor-outdoor transitions to practical everyday spaces and a welcoming exterior, it’s ideal for families who want both functionality and visual appeal in a thoughtfully balanced single-story design.












