This beautifully designed barndominium-style farmhouse offers approximately 2,000 square feet of heated living space with three bedrooms, two full bathrooms, and one half bathroom. Designed as a single-story residence, this home blends rustic barn-inspired architecture with modern open-concept living. Featuring a massive garage and expansive wraparound porch, it is ideal for homeowners seeking both functionality and relaxed country charm. 0

Exterior Design
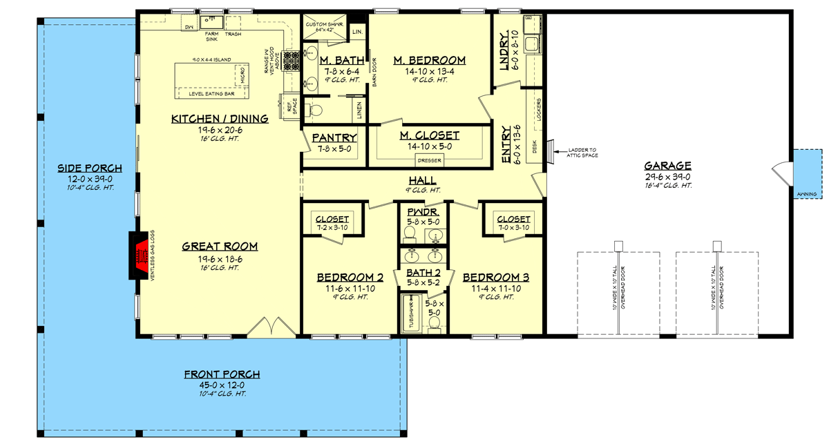
The exterior showcases classic barndominium character with a simple yet bold structure. One of the standout features is the wraparound porch, measuring approximately 10 feet 4 inches deep and extending along two sides of the home. This creates a generous outdoor living area perfect for relaxing, entertaining, or enjoying scenic views. 1

The home also includes an impressive 1,200 square foot garage with two large 10′ × 10′ overhead doors, giving it a strong barn-inspired appearance while providing exceptional utility. 2

Interior Layout Overview
All 2,000 square feet of living space is arranged on one level, offering convenience and accessibility. The layout emphasizes open living areas while keeping bedrooms centrally located for efficiency and easy access. 3

The design maximizes space with a clean, functional flow, making it ideal for both everyday living and entertaining.
Main Living Area
The heart of the home features a spacious open-concept great room that connects seamlessly with the kitchen and dining area. This central space is enhanced by dramatic 16-foot ceilings, creating a bright and airy atmosphere. 4

The kitchen includes a large 9′ × 4′ island and a walk-in pantry, offering both functionality and ample storage. Its open placement allows for easy interaction with family and guests. 5

Bedrooms
This home includes three bedrooms, all conveniently grouped together in the center of the layout. This arrangement promotes efficient use of space while maintaining privacy. 6
The primary suite serves as a comfortable retreat, while the additional bedrooms are ideal for family members, guests, or flexible use such as a home office.

Bathrooms
The design includes two full bathrooms and one half bathroom, ensuring convenience for both residents and visitors. Bathrooms are strategically positioned to serve both private and shared areas of the home. 7

Functional Features
- Single-story layout: All living areas are on one level for easy accessibility.
- Wraparound porch: Expands outdoor living space significantly. 8

- Open-concept design: Enhances flow between kitchen, dining, and living areas.
- 16-foot ceilings: Create a spacious and airy interior. 9
- Large kitchen island: Provides workspace and seating.
- Centralized bedrooms: Improve efficiency and accessibility.
- Garage loft storage: Accessible via ladder for additional storage. 10

Garage and Additional Space
The attached two-car garage offers approximately 1,200 square feet of space, making it far larger than typical residential garages. This area is ideal for vehicles, equipment, workshop use, or storage.

A loft storage area above the main living space provides additional storage, accessible from the garage via a ladder. 11
Dimensions and Structural Details
The home is constructed using 2×6 exterior wall framing, enhancing durability and energy efficiency. 12
Its single-story structure and simple roofline make it efficient to build while maintaining the bold appearance typical of

barndominium-style homes.
Estimated Building Cost (USD)
Construction costs vary depending on location, materials, and labor. Using common mid-range estimates:
- Low estimate: ~ $240,000 (assuming ~$120 per sq ft × 2,000 sq ft)
- High estimate: ~ $360,000 (assuming ~$180 per sq ft × 2,000 sq ft)

This barndominium-style farmhouse offers a perfect blend of rustic charm, modern comfort, and exceptional functionality. Its expansive porch, soaring ceilings, and oversized garage make it an excellent choice for homeowners seeking a distinctive and practical country home.
“`13











