This barndominium plan delivers about 2,589 sq ft of versatile living space spread across two levels, blending rustic charm with modern functionality. Featuring 4 bedrooms, 3 full bathrooms, generous porch areas, and a spacious attached 3-car garage, this home’s design is ideal for families who want open, connected spaces with a touch of farmhouse appeal and plenty of room for everyday life. 0
Exterior & Curb Appeal
The exterior makes a strong impression with classic barndominium character — clean vertical lines, expansive roof planes, and a generous footprint measuring roughly 96′-2″ wide × 64′ deep. 1 A wraparound covered porch enhances the facade, creating inviting outdoor living spaces while adding charm and personality to the design. 2 This outdoor area is perfect for morning coffee, watching sunsets, or chatting with guests. 3

Porches & Outdoor Living
Extensive porch space — including the wraparound front and side porches — extends your living areas outdoors and creates comfortable zones for dining, relaxing, or entertaining. 4 These covered outdoor spaces offer shelter from sun and rain while reinforcing the indoor-outdoor flow that makes barndominium living feel open and relaxed. 5
Main Living Area & Open Floor Plan
Inside, the main floor centers around an open living area that brings the kitchen, dining, and great room into a cohesive space. 6 Large windows and thoughtfully placed doors ensure abundant natural light, making the interior feel bright and welcoming. 7 The open floor plan supports easy everyday living and entertaining, allowing family members and guests to stay connected across zones. 8

Kitchen & Dining — Functional Hub
The kitchen is designed for both efficiency and social engagement. 9 Ample counter space and a central island make meal preparation comfortable and welcoming. 10 With direct sightlines to the dining area and porch access nearby, this layout makes hosting meals and gatherings a breeze. 11 Practical storage and thoughtful placement of utilities underline the home’s livability. 12
Primary Suite — Private & Comfortable
The primary bedroom is positioned for everyday convenience and tranquility. 13 With generous windows inviting natural light, it feels bright and relaxing. 14 The attached full bathroom delivers ease and comfort with functional fixtures and good storage, making this suite a true retreat within the home. 15
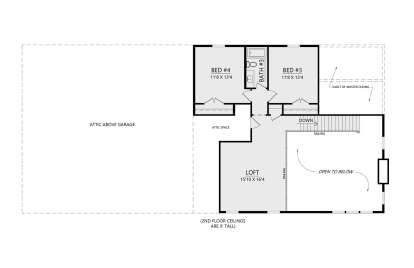
Secondary Bedrooms & Flexible Spaces
Three additional bedrooms offer adaptable spaces for children, guests, or flexible uses such as a home office or hobby area. 16 These bedrooms share easy access to full bathrooms, ensuring comfort and privacy for family members and visitors alike. 17 Thoughtful placement and proportion make each room feel spacious and welcoming. 18
Loft & Bonus Living Space
A spacious loft on the second level adds wonderful flexibility — an ideal space for a media room, play area, office, or creative studio. 19 This bonus zone adds long-term value to the plan and enhances the home’s adaptability as needs change over time without impacting the main flow of daily living. 20
Garage, Mudroom & Practical Flow
The attached three-car garage provides extensive covered parking and storage — a hallmark of modern barndominium design. 21 A mudroom transition from the garage to the interior helps tame everyday clutter, while easy access to utility areas keeps daily routines efficient. 22 These practical touches ensure that organization and flow go hand-in-hand with the home’s rustic appeal. 23
Indoor-Outdoor Connectivity & Daylight
Abundant windows and multiple access points to porch areas ensure natural light fills the living spaces, enhancing comfort and making interiors feel open and airy. 24 The strong indoor-outdoor connection invites fresh air and inspires relaxed everyday living. 25

Dimensions & Key Features
- Total Heated Area: ~2,589 sq ft (main floor ~1,752 sq ft; second floor loft ~837 sq ft) 26
- Bedrooms: 4 27
- Bathrooms: 3 full 28
- Stories: 2 29
- Garage: 3-car attached (~1,627 sq ft unheated) 30
- Porch/Patio: ~1,190 sq ft of porch space 31
- Width: ~96′-2″ 32
- Depth: ~64′ 33

Lifestyle Highlights
- Open living area that promotes connection and ease of movement across shared spaces.
- Kitchen designed around practicality and social connection.
- Primary suite that doubles as a quiet retreat with its own private bathroom.
- Secondary bedrooms that adapt to various family needs.
- Spacious loft that adds flexible living or work space.
- Generous porch areas that enhance indoor-outdoor living and everyday enjoyment.
- Three-car garage and mudroom that support organization and practical flow. 34

Estimated U.S. Build Cost (USD)
Assuming typical U.S. residential construction costs of **$180–$260 per sq ft**, building this ~2,589 sq ft barndominium plan could range between **$466,000 and $673,000 USD** (excluding land, permits, site prep, and regional variations). 35
Why This Barndominium Plan Shines
This barndominium plan blends rustic character with modern comfort and thoughtful functionality. Its generous shared spaces, private bedroom zones, flexible loft, and substantial porch areas make it ideal for families who want both space and style. With a thoughtful layout that supports everyday living and entertaining, this design offers a warm, welcoming home with timeless appeal.












