This striking barndominium plan delivers about 2,558 sq ft of living space across two levels that blend rustic character with modern, functional design. Offering 4 bedrooms, 2 full bathrooms, and 1 half bath, plus generous garage and porch space, this home supports everyday family living with open gathering areas, flexible zones, and thoughtful flow throughout. 0

Exterior & Curb Appeal
The exterior makes a bold yet welcoming statement with classic barndominium proportions that combine clean vertical siding, substantial rooflines, and thoughtful symmetry. 1 Spanning approximately 72′ wide × 60′ deep, the façade balances modern farmhouse charm with practical durability. 2 A covered front porch offers a relaxed outdoor respite — perfect for morning coffee or evening conversations — while also reinforcing the home’s approachable presence. 3
Front Porch & Outdoor Living
The covered front porch frames the entry and provides an inviting outdoor space that feels connected to everyday living. 4 It’s a comfortable place to enjoy fresh air throughout the seasons, host guests, or simply unwind after a long day. 5 With ample room for seating, planters, or rocking chairs, this porch becomes an extension of your interior living space. 6

Main Level — Open Living & Heart of the Home
Inside, the main level centers around a spacious open living zone that blends the great room, kitchen, and dining area into one harmonious space. 7 Expansive sightlines make this area ideal for family time, entertaining, or relaxed daily routines. 8 Light pours in through generous windows, enhancing the airy feel and tying the interior to the surrounding landscape. 9
Kitchen & Dining — Practical & Sociable
The kitchen boasts an efficient layout with plentiful counter space and cabinetry to support everyday meal prep and hosting. 10 A central island serves as both a functional workspace and casual gathering spot, encouraging connection between the cook and guests. 11 The adjacent dining area flows effortlessly into the open living space, making this core zone ideal for shared meals and celebrations. 12

Primary Suite — Private & Comfortable
The primary bedroom suite is tucked toward the rear of the home for daily comfort and peace. 13 With generous windows that usher in natural light, the space feels warm and inviting. 14 Its attached full bathroom offers practical fixtures and thoughtful storage, creating a personal retreat at the end of the day. 15
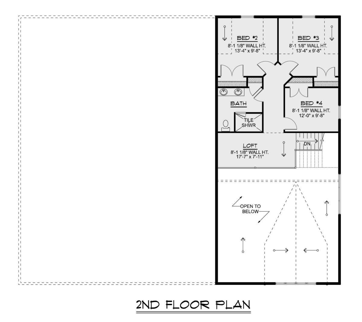
Secondary Bedrooms & Flexible Spaces
Three additional bedrooms provide flexibility and space for family, guests, or multifunctional use like a home office or creative nook. 16 These rooms share easy access to the second full bathroom, ensuring convenience without disrupting daily routines. 17 Well-placed closets and natural light help these rooms feel open and adaptable. 18

Bathrooms & Everyday Flow
With two full bathrooms and one half bath, this plan supports busy households and guest comfort. 19 The half bath near shared living zones enhances convenience for visitors, while full baths adjacent to the primary and secondary bedrooms promote privacy and practicality. 20

Loft & Bonus Space
An upstairs loft area adds a flexible bonus space that can serve as a media room, study area, kids’ play zone, or secondary lounge — perfect for adapting to your evolving lifestyle needs. 21 This additional floor contributes functional square footage without detracting from the main living zones below. 22
Garage, Mudroom & Practical Transitions
The attached three-car garage brings substantial covered parking and storage space, perfect for vehicles, outdoor gear, and seasonal items. 23 A mudroom transition zone helps keep clutter out of the main living spaces, fostering a tidy and organized home. 24 Easy access to the laundry and utility areas supports efficient household routines. 25

Indoor-Outdoor Connection & Natural Light
Large windows and doors invite abundant natural light deep into the plan and strengthen the connection between indoor rooms and outdoor spaces. 26 This design encourages fresh air flow and visual ties to the exterior environment, enhancing everyday comfort and livability. 27

Dimensions & Key Features
- Total Heated Area: ~2,558 sq ft 28
- Bedrooms: 4 29
- Bathrooms: 2 full + 1 half 30
- Stories: 2 31
- Garage: 3-car attached 32
- Front Porch: Covered outdoor space 33
- Width: ~72′ 34
- Depth: ~60′ 35

Lifestyle Highlights
- Open great room that unifies living, dining, and kitchen areas for everyday living and entertaining.
- Kitchen designed for comfort and connection with ample workspace and island seating.
- Primary suite that serves as a private and restful daily retreat.
- Secondary bedrooms adaptable to family needs, guests, or flexible uses.
- Loft space that adds versatile room for play, work, or leisure.
- Generous porch that enhances indoor-outdoor living and outdoor enjoyment.
- Three-car garage and mudroom transition that streamline everyday flow and organization. 36

Estimated U.S. Build Cost (USD)
Assuming typical U.S. residential construction costs of **$180–$260 per sq ft**, building this ~2,558 sq ft barndominium plan could range between **$461,000 and $665,000 USD** (excluding land, permits, site prep, and regional variations). 37
Why This Barndominium Plan Shines
This barndominium plan blends striking rustic character with functional, everyday living. Its open shared spaces, private bedroom zones, generous porch, and flexible loft create a home that feels spacious, welcoming, and versatile. With thoughtful transitions, abundant natural light, and ample storage, this design supports both lively family life and relaxed downtime.












