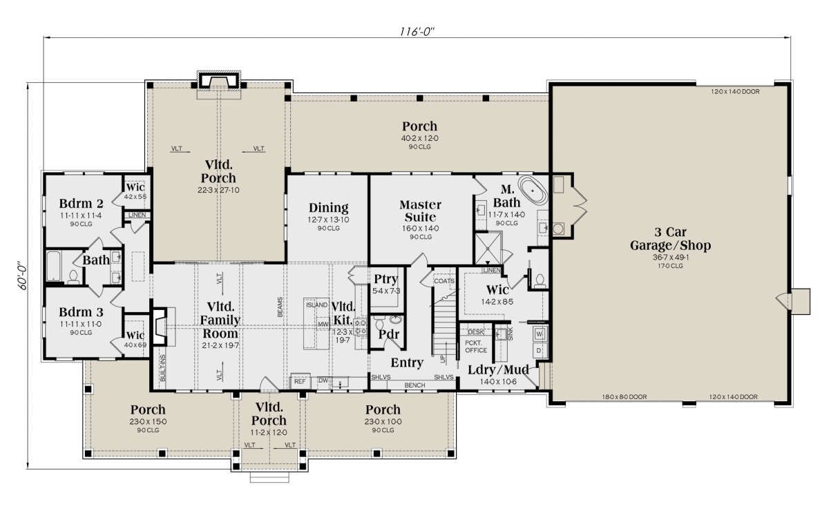
This spacious barndominium home plan offers approximately 2,308 square feet of thoughtfully designed single-story living space featuring three bedrooms, two full bathrooms, and one half bathroom. Blending rugged barn-inspired architecture with modern comfort and flexibility, this design is ideal for families, hobby-farm settings, or rural retreats seeking open living and functional spaces. ([houseplans.net](https://www.houseplans.net/floorplans/00900441/barndominium-plan-2308-square-feet-3-bedrooms-2.5-bathrooms))

Exterior Design
The exterior reflects classic barndominium character with a broad footprint and simple rooflines that emphasize practicality and durability. A welcoming covered porch extends outdoor living opportunities, while generous windows bring natural light into the interior spaces. Durable siding and roof materials help this design stand up to weather and time, making it a strong choice for rural landscapes or larger lots. ([houseplans.net](https://www.houseplans.net/floorplans/00900441/barndominium-plan-2308-square-feet-3-bedrooms-2.5-bathrooms))

A spacious three-car garage is integrated into the design, offering generous covered parking, storage, or workshop space — a highly appreciated feature for barndominium owners who value utility and flexibility. ([houseplans.net](https://www.houseplans.net/floorplans/00900441/barndominium-plan-2308-square-feet-3-bedrooms-2.5-bathrooms))

Interior Layout Overview
Inside, this barndominium plan prioritizes open and adaptable living spaces that encourage connection while supporting independent day-to-day activities. The layout connects the main living areas to encourage easy circulation and adaptability, perfect for family interaction and entertaining. ([houseplans.net](https://www.houseplans.net/floorplans/00900441/barndominium-plan-2308-square-feet-3-bedrooms-2.5-bathrooms))

Main Living Area
The central great room acts as the heart of the home, seamlessly flowing into the dining and kitchen zones — an ideal configuration for both casual and formal gatherings. Large windows help fill the space with natural light, enhancing the openness and inviting atmosphere throughout. The kitchen typically includes ample counter space, cabinetry, and a functional layout that supports meal prep, storage, and everyday use. ([houseplans.net](https://www.houseplans.net/floorplans/00900441/barndominium-plan-2308-square-feet-3-bedrooms-2.5-bathrooms))

Bedrooms
This plan includes three comfortable bedrooms. The primary suite serves as a private retreat for homeowners, offering generous space and convenient access to its own full bathroom. ([houseplans.net](https://www.houseplans.net/floorplans/00900441/barndominium-plan-2308-square-feet-3-bedrooms-2.5-bathrooms))

The secondary bedrooms are well-proportioned and located near the second full bathroom, providing privacy and convenience for family members or guests. These rooms can also be adapted for multifunctional use such as home offices, studios, or hobby spaces depending on the homeowner’s needs. ([houseplans.net](https://www.houseplans.net/floorplans/00900441/barndominium-plan-2308-square-feet-3-bedrooms-2.5-bathrooms))
Bathrooms
This home features two full bathrooms and a half bathroom. The primary bathroom serves the owner’s suite with practical layout and fixtures designed for comfort and convenience. The second full bathroom supports the additional bedrooms, while the half bath provides added flexibility and guest convenience. ([houseplans.net](https://www.houseplans.net/floorplans/00900441/barndominium-plan-2308-square-feet-3-bedrooms-2.5-bathrooms))

Functional Features
- Open floor plan: Encourages seamless flow between the great room, kitchen, and dining areas for modern living and entertaining. ([houseplans.net](https://www.houseplans.net/floorplans/00900441/barndominium-plan-2308-square-feet-3-bedrooms-2.5-bathrooms))

- Three-car garage: Provides covered parking, storage, or workshop space. ([houseplans.net](https://www.houseplans.net/floorplans/00900441/barndominium-plan-2308-square-feet-3-bedrooms-2.5-bathrooms))
- Three bedrooms: Offers private spaces for family or adaptable use. ([houseplans.net](https://www.houseplans.net/floorplans/00900441/barndominium-plan-2308-square-feet-3-bedrooms-2.5-bathrooms))

- Two full + one half bathrooms: Enhances comfort and convenience for residents and guests. ([houseplans.net](https://www.houseplans.net/floorplans/00900441/barndominium-plan-2308-square-feet-3-bedrooms-2.5-bathrooms))

- Covered porch: Provides extended outdoor living and climate-protected space. ([houseplans.net](https://www.houseplans.net/floorplans/00900441/barndominium-plan-2308-square-feet-3-bedrooms-2.5-bathrooms))

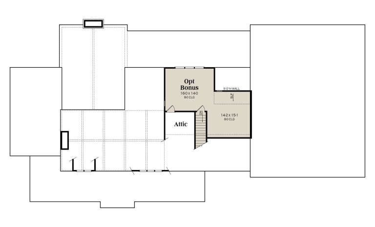
Dimensions and Structural Details
The total heated area is approximately 2,308 square feet, laid out on a single level to promote easy accessibility and efficient circulation throughout all living spaces. Standard wood framing and conventional roof structures support strong build performance and long-lasting durability. Foundation options — including slab, crawlspace, or basement — may be chosen based on site conditions, local preferences, and budget considerations.





([houseplans.net](https://www.houseplans.net/floorplans/00900441/barndominium-plan-2308-square-feet-3-bedrooms-2.5-bathrooms))
Estimated Building Cost (USD)
Building costs vary depending on materials, finishes, labor rates, and regional conditions. Using typical mid-range construction estimates:
- Low estimate: ~ $276,960 (assuming ~$120 per sq ft × 2,308 sq ft)
- High estimate: ~ $415,440 (assuming ~$180 per sq ft × 2,308 sq ft)

Actual construction costs will depend on customization, finish quality, site preparation, and local market conditions, but this barndominium plan offers a balanced combination of functional space, modern flexibility, and rustic charm. ([houseplans.net](https://www.houseplans.net/floorplans/00900441/barndominium-plan-2308-square-feet-3-bedrooms-2.5-bathrooms))
“`0












