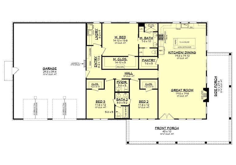
This barndominium-style home offers about 2,000 sq ft of heated living space, combining that bold barn-inspired look with a modern, highly livable interior. With 3 bedrooms and 2.5 bathrooms, it’s designed for homeowners who want open-concept comfort, smart bedroom privacy, and a home that feels relaxed and functional—not overly formal. The layout makes everyday living simple, while still offering enough space for hosting, working from home, or enjoying a little breathing room. It’s the kind of home that feels casually stylish, easy to maintain, and ready for real routines.

Exterior & Curb Appeal – Barndominium Character with Strong, Country Presence
From the curb, this home brings that classic barndominium attitude—clean lines, a bold shape, and a confident exterior that feels equal parts rustic and modern. Barndominiums are loved because they feel practical, grounded, and full of personality, and this design fits that mood beautifully.
With its barn-inspired form, this home looks right at home on wide lots, rural property, or even suburban land where you want something that feels different and distinctive. Add warm exterior lighting, a simple walkway, and neat landscaping, and the curb appeal becomes both charming and striking.

Outdoor Living – Fresh Air Space for Relaxed Weekends and Easy Hosting
Barndominium living naturally pairs well with outdoor enjoyment. Whether you add a patio setup, a porch seating area, or a backyard entertaining spot, the home supports a lifestyle that feels open and relaxed.
This is the type of layout that works beautifully for weekend grilling, outdoor dinners, or simply stepping out for fresh air at the end of the day. Outdoor living makes the interior feel even bigger, especially when guests can move easily between inside and outside.
Even if your outdoor space is simple, it becomes a daily comfort zone—because sometimes all you need is a chair, a quiet moment, and a little space to breathe.
Main Living Area – Open, Airy, and Built for Togetherness
Step inside and the home immediately feels spacious. One of the biggest benefits of barndominium design is how it favors open, breathable interiors, and this plan delivers that in a way that feels welcoming and easy to use.
The main living area is designed as the heart of the home, giving you a comfortable gathering space where everyone naturally ends up. It’s perfect for family movie nights, relaxed weekends, and entertaining without the awkward “where do we all sit?” problem.
Because the layout stays connected, the home feels brighter and more social. You can be cooking, chatting, and relaxing in the same shared zone, which makes everyday living feel smoother and more connected.

Kitchen & Dining – Practical Function with a Social Layout
The kitchen is positioned to keep you involved in the home’s activity while still giving you a functional cooking space. In a home built for comfort and flow, the kitchen isn’t tucked away—it’s part of the lifestyle.
The dining area sits nearby, making meals easy to serve and everyday routines easier to manage. It’s the kind of setup that works for quick breakfasts, family dinners, and hosting friends without feeling cramped.
And because this is a barndominium layout, the kitchen and dining spaces tend to feel open and flexible. Whether you want a big dining table for gatherings or a more casual setup for daily use, the home can adapt to your lifestyle easily.

Primary Suite – Private, Comfortable, and Designed for Real Rest
The primary bedroom is designed as a calm retreat away from the busiest parts of the home. With a three-bedroom layout, having the primary suite feel private makes the whole house more comfortable, especially for families or homeowners who enjoy quiet evenings.
The primary bathroom adds daily convenience, helping routines feel smoother and giving the suite that finished, comfortable feeling. It’s a space designed for real comfort—not just a bedroom you sleep in.

Two Additional Bedrooms – Flexible Space for Family, Guests, or a Home Office
With 3 bedrooms, this plan offers flexibility that fits many lifestyles. The extra bedrooms can be used for kids, guests, or even as a home office if you want a dedicated workspace. That flexibility makes the home more adaptable long-term.
If you have visitors often, the extra rooms make hosting easy and comfortable. If you’re building a family home, it gives children their own spaces without needing a much larger square footage. And if you work from home, one bedroom can become the kind of quiet office you actually enjoy spending time in.
The bedroom arrangement supports privacy and calm, helping the home feel balanced even when life gets busy.
2.5 Bathrooms – Everyday Convenience and Guest-Friendly Living
This plan includes 2 full bathrooms plus a half bath, which is a fantastic setup for a three-bedroom home. Two full bathrooms keep daily routines smooth, while the half bath is perfect for guests and everyday convenience.
The half bath is especially useful when entertaining. Guests can use a bathroom without walking into private bedroom spaces, which instantly makes the home feel more comfortable and polished during gatherings.
Even day-to-day, 2.5 baths adds comfort you feel constantly—less waiting, less stress, and smoother mornings.

Laundry & Storage – The Quiet Features That Make the Home Work
Storage and organization are what keep an open-layout home feeling clean and calm, and this plan supports that with practical storage areas and closets that help keep clutter contained.
A dedicated laundry space is another everyday lifesaver. It keeps chores organized and prevents laundry from taking over the main living space. When the functional zones of a home are well planned, daily routines become easier—and this plan is built with that in mind.
Right-Sized Barndominium Living – Spacious Without Being Overwhelming
At 2,000 sq ft, this home offers a comfortable footprint that feels spacious and flexible without becoming too much to maintain. It’s large enough for family living and entertaining, but still manageable for long-term upkeep and cleaning.
This size is ideal for homeowners who want the open, relaxed vibe of a barndominium without jumping into an oversized build.
Specs Summary
- Living Area: ~2,000 sq ft
- Bedrooms: 3
- Bathrooms: 2 full + 1 half (2.5 total)
- Stories: 1 (single-level living)
- Style: Barndominium
- Layout Highlights: Open main living space, flexible bedrooms, and guest-friendly half bath
Lifestyle Highlights
- Bold barndominium curb appeal with rustic-modern character.
- Open-concept main living supports connection and easy entertaining.
- 3 bedrooms provide flexibility for family, guests, or office use.
- 2.5 bathrooms make daily routines smoother and hosting easier.
- A right-sized footprint that feels spacious but still easy to maintain.

Estimated U.S. Build Cost (USD)
With typical U.S. construction costs around $175–$260 per sq ft, building a ~2,000 sq ft barndominium may cost roughly $350,000–$520,000 USD, excluding land, permits, site preparation, utility hookups, and regional construction differences.

Why This Barndominium Plan Stands Out
This barndominium plan blends rustic charm with modern comfort in a layout that’s designed for real living. With open gathering space, three flexible bedrooms, and 2.5 bathrooms that make everyday routines easier, it’s a home that feels relaxed, welcoming, and functional. It’s spacious without being overwhelming, stylish without being fussy, and perfectly suited for homeowners who want a home that feels practical, warm, and full of character.












