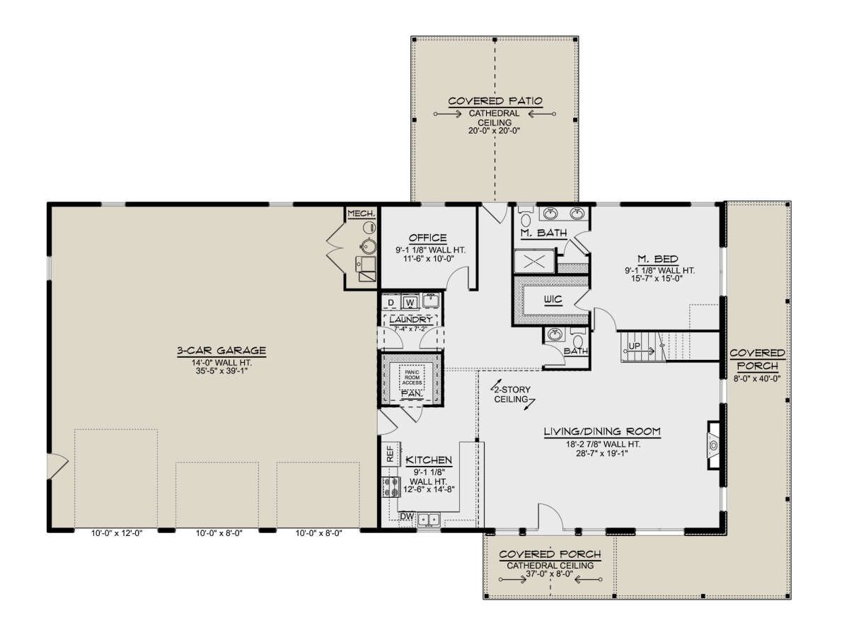
This striking barndominium-style home offers approximately 2,692 sq ft of thoughtfully designed living space that blends modern comfort with bold, functional character. Featuring 2 bedrooms, 2.5 bathrooms, expansive open-concept living areas, and a layout designed for both daily comfort and entertaining, this plan is ideal for homeowners who value space, flexibility, and a unique architectural presence. 0

Exterior Design & Barndominium Curb Appeal
The exterior embraces classic barndominium character with clean lines, simple massing, and a strong, confident profile. 1 Metal-inspired finishes, large wall planes, and oversized openings create a modern, industrial aesthetic that feels both rugged and refined. 2 The overall look is practical yet stylish—perfect for rural settings, acreage lots, or homeowners who want something refreshingly different from traditional designs. 3
Welcoming Entry & First Impressions
Stepping inside, the entry opens directly into the heart of the home, creating an immediate sense of scale and openness. 4 Wide sightlines and generous ceiling heights make the space feel airy and uncluttered, while the simple layout keeps movement intuitive and comfortable. 5 The design prioritizes function without sacrificing visual impact. 6

Main Living Area – Open, Airy & Social
The central living space is a true highlight of this plan. 7 An expansive open-concept layout combines the living room, kitchen, and dining area into one cohesive zone that supports gatherings of all sizes. 8 High ceilings and large windows flood the interior with natural light, reinforcing the bright, welcoming feel that defines modern barndominium living. 9
This layout encourages connection—whether you’re hosting friends, relaxing after a long day, or enjoying a quiet weekend at home.
Kitchen & Dining – Functional with Modern Flair
The kitchen is designed for efficiency and interaction. 10 Generous counter space and a large central island provide room for meal prep, casual dining, or socializing while cooking. 11 The adjacent dining area flows naturally from the kitchen, making everyday meals and larger gatherings feel equally comfortable. 12
Open sightlines keep the kitchen visually connected to the living space, ensuring the cook is always part of the conversation.

Primary Suite – Spacious & Private Retreat
The primary bedroom suite offers a quiet, comfortable retreat away from the main living areas. 13 Its generous size allows for flexible furniture arrangements, while large windows bring in natural light and outdoor views. 14 The ensuite bathroom is designed for daily comfort with well-organized fixtures and ample space for storage. 15

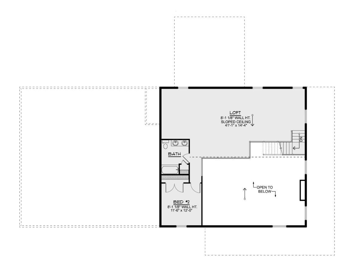
Secondary Bedroom – Ideal for Guests or Flex Use
The second bedroom is thoughtfully placed to provide privacy and versatility. 16 Perfect for guests, family members, or even a home office, this room has convenient access to a full bathroom while remaining comfortably separated from the primary suite. 17 This setup supports flexible living without compromising privacy. 18

Bathrooms – Practical & Well-Planned
With 2 full bathrooms and an additional half bath, this home easily supports daily routines and entertaining. 19 The half bath is conveniently located near the main living areas, making it ideal for guests while keeping private spaces undisturbed. 20
Storage, Utility & Everyday Function
Barndominium living shines when it comes to practical space, and this plan delivers. 21 Storage areas, utility zones, and closets are integrated thoughtfully throughout the layout to support organization and reduce clutter. 22 The home’s straightforward circulation keeps daily tasks efficient and stress-free. 23

Indoor–Outdoor Connection
Large openings and strategically placed windows strengthen the connection between indoor and outdoor spaces. 24 Whether enjoying fresh air, natural light, or outdoor views, this plan encourages a relaxed lifestyle that feels connected to its surroundings. 25
Dimensions & Overall Scale
With approximately 2,692 sq ft of living space, this barndominium strikes a balance between openness and manageability. 26 The footprint feels expansive without being overwhelming, making it suitable for homeowners who want space to breathe without unnecessary complexity. 27

Specs Summary
- Living Area: ~2,692 sq ft 28
- Bedrooms: 2 29
- Bathrooms: 2 full + 1 half 30
- Stories: 1 31
- Style: Modern Barndominium 32

Lifestyle Highlights
- Expansive open-concept living ideal for entertaining and everyday comfort.
- Distinct barndominium style with modern, industrial character.
- Private primary suite separated from guest or flex bedroom.
- Ample space for storage, hobbies, or adaptable uses.
- Strong indoor–outdoor connection for a relaxed, airy lifestyle.
Estimated U.S. Build Cost (USD)
Assuming mid-to-high quality finishes and typical U.S. construction costs of around $170–$260 per sq ft, building ~2,692 sq ft suggests an estimated range of $458,000–$700,000 USD, excluding land, permits, site work, and regional variations. 33

Why This Barndominium Plan Stands Out
This modern barndominium plan delivers bold style, open living, and everyday practicality in one cohesive design. With its spacious interior, flexible rooms, and distinctive architectural character, it’s ideal for homeowners who want a home that feels both functional and refreshingly different—perfect for modern rural living or anyone drawn to the barndominium lifestyle. 34











