This contemporary mountain-inspired home offers about 2,792 sq ft of heated living space, thoughtfully designed for modern family life and scenic lot settings. Featuring 4 bedrooms, 3.5 bathrooms, and an attached 2-car garage (~596 sq ft), the plan blends open, light-filled interiors with a flexible finished lower level — ideal for recreation, guests, or everyday living on sloped or walkout lots. 0
Exterior & Mountainside Curb Appeal
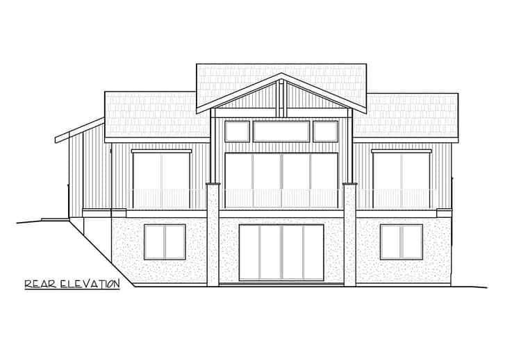
The exterior balances contemporary styling with mountain home character. Clean lines, generous windows, and a broad front façade create a sense of modern presence that still feels at home in rugged or scenic settings. Large decks and rear glazing support a strong indoor-outdoor connection — perfect for lots with views, wooded backdrops, or breezy hilltop sites. 0

An attached **2-car garage (~596 sq ft)** sits neatly to the side of the home, keeping the main elevations focused on living and outdoor spaces without overwhelming the façade. 0
Welcoming Foyer & Open Main Living
Step through the covered entry into a grand foyer highlighted by dramatic ceiling height. This welcoming space flows directly into the main living zones — where an open layout lets sightlines stretch from the kitchen through the dining and family areas to the rear deck. Large windows and sliding glass doors fill the interior with natural light and offer effortless access to outdoor living. 1

The family room anchors this open zone, and its orientation toward the rear of the home makes it ideal for taking in views or guiding family gatherings and entertaining. 1
Kitchen & Dining — Designed for Daily Life & Social Flow
The kitchen, positioned at the heart of the main living spaces, features a large island that invites casual seating and lively interaction between cooks and guests. Strategic layout and connection to both dining and outdoor areas make this kitchen ideal for everyday meals, weekend hosting, and everything in between. 1
A walk-in pantry and ample counter space help keep meal preparation efficient and organized — especially useful when entertaining or feeding a busy family. 1
Primary Suite — Main Level Retreat
The primary bedroom suite is tucked privately off the main living area and opens to a rear deck — offering a peaceful retreat with direct outdoor access. Its ensuite bathroom includes dual vanities, a sizable shower, and a walk-in closet designed for everyday ease and comfort. 1
Lower Level — Finished Space for Living & Leisure
The finished lower level makes this plan especially flexible. Here you’ll find three additional bedrooms and a shared bath — perfect for family members, guests, or dedicated work-from-home space. A rec or lounge room with optional features like a fireplace or wet bar gives this level a relaxed, multi-purpose vibe that’s ideal for game nights, movie evenings, or workout space. 2
Because this level is designed with walkout capability, it’s especially well-suited to sloping or daylight basement lots — letting the home expand naturally into the outdoors and take full advantage of views or landscape features. 1
Outdoor Living — Decks & Views
Deck space off the main living areas encourages year-round outdoor enjoyment. Whether you’re hosting summer barbecues, sipping morning coffee, or taking in evening sunsets, these semi-covered areas serve as natural extensions of your indoor spaces — perfect for mountain or wooded settings where the views are part of daily life. 1
Garage, Mudroom & Utility Zones
The attached **2-car garage (~596 sq ft)** provides secure parking and storage, with direct access into a mudroom that helps keep the main living areas tidy. A nearby laundry zone adds convenience, placing utility tasks close to bedrooms and common areas without interrupting your main social spaces. 1

Structure & Specs Summary
- Total Heated Area: ~2,792 sq ft 0
- Bedrooms: 4 (1 main level + 3 lower level) 0
- Bathrooms: 3.5 total 0
- Stories: Main level + finished lower level 0
- Garage: 2-car attached (~596 sq ft) 0
- Foundation: Slab or walkout basement 0
- Exterior Walls: 2×6 framing 0
- Dimensions: Width and depth suited to sloping/walkout lots 0
- Style: Contemporary Mountain 0
- Key Features: Grand foyer with high ceilings, open living, main deck access, walkout lower level with rec space. 1
Lifestyle Highlights — Scenic, Flexible & Comfortable
- Views & natural light: Large windows and rear deck access help bring the outdoors inside, perfect for mountain or wooded settings. 1
- Finished lower level: Adds flexibility with extra bedrooms and a rec room that can adapt to family needs or leisure activities. 1
- Open main level flow: Kitchen, dining, and family room encourage connection and effortless entertaining. 1
- Private primary suite: A comfortable and secluded retreat with outdoor access enhances everyday living. 1
- Parking & storage: A well-sized two-car garage and mudroom help keep life organized and functional. 0
Estimated U.S. Build Cost (USD)
Assuming typical U.S. residential construction costs of about $180–$260 per sq ft for mid-range finishes, building approximately 2,792 sq ft suggests a rough estimate of **$502,000–$726,000 USD** (excluding land, permits, site prep, utilities, and regional materials/labor costs). 0

Why This Contemporary Mountain Plan Stands Out
This contemporary mountain house design blends indoor-outdoor living with practical, scenic-oriented spaces. Its open living core, finished lower level with extra bedrooms and recreation space, and thoughtful indoor-outdoor connections make it a great choice for families or individuals seeking comfort, flexibility, and connection to nature. Whether on a sloping lot or a scenic mountainside view site, this plan takes advantage of light, landscape, and everyday living with style and functionality.












