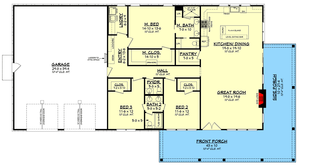
This striking modern farmhouse barndominium blends rustic charm with contemporary comfort across about 2,000 sq ft of heated living area. Designed with a generous wrap-around porch, an attached 2-car garage (~1,200 sq ft), and a thoughtful layout that works for everyday family life or weekend retreats, this plan feels both relaxed and refined. The home includes 3 bedrooms, 2.5 bathrooms, and plenty of spaces that invite connection, organization, and year-round enjoyment of indoor-outdoor living. 0

Exterior & Curb Appeal – Modern Farmhouse Meets Barndominium Style
The exterior brings together the best of modern farmhouse details and barn-inspired scale, showcasing clean lines and a welcoming presence. The expansive wrap-around porch adds character and depth, giving the façade a classic silhouette while offering multiple spots to sit, relax, or watch the world go by. 1 With thoughtful window placement and a straightforward roofline, this design feels both contemporary and timeless—perfect for rural settings, scenic lots, or even transitional neighborhoods. 2
Outdoor Living – A Porch That Feels Like an Extra Room
Outdoor living is a highlight here, with about **703 sq ft** of porch space wrapping around the home. This generous porch extends outdoor living well beyond a front stoop, creating zones for morning coffee, evening chill sessions, conversation corners, or welcoming guests on a warm afternoon. 3 Whether you’re sipping lemonade on a summer evening or enjoying fresh air in the cool of the morning, the porch becomes a quiet extension of your indoor spaces. 4

Great Room & Main Living Area – Open, Bright & Social
Step inside from the porch into a warm and open main living area where the great room flows directly into the kitchen and dining space. Soaring **10-foot ceilings** enhance the sense of openness, while natural light through well-placed windows keeps the space bright and welcoming. 5 The open layout is perfect for family gatherings, hosting friends, or simply staying connected through daily routines—so no matter what’s happening, everyone feels part of the moment. 6
Kitchen & Dining – Functional & Casual Entertaining
The heart of the home is its well-designed kitchen. A generous island provides space for casual meals, prep work, or conversations, while a walk-in butler’s pantry adds storage and organization that helps keep the kitchen tidy and efficient. 7 The kitchen’s connection to the dining space makes serving meals easy and social, whether you’re hosting a holiday table or enjoying a quiet dinner together. 8
Primary Suite – Peaceful & Private Retreat
The main-level primary suite is a private sanctuary nicely set apart from the secondary bedrooms. This restful retreat offers ample space, an elegant attached bathroom, and thoughtful closet storage. 9 Positioned away from daily hubs, it gives you a peaceful place to start and end your day—while still being close enough to the heart of the home to feel connected. 10
Secondary Bedrooms – Comfortable & Connected
The two additional bedrooms are positioned on the opposite side of the home, sharing a well-appointed **Jack & Jill bathroom**—a smart layout that supports privacy and convenience for family or guests. 11 These rooms are sized for comfort and flexibility, easily adapting to children, visitors, or even work-from-home space should your lifestyle evolve. 12

Bathrooms – Practical Placement & Ease of Use
This plan includes **2 full bathrooms** and **1 half bathroom**, which is an excellent arrangement for a home of this size. Full bathrooms support both everyday routines and guest comfort, while the half bath near the main living areas adds practical convenience without crossing into private bedroom territory. 13 This thoughtful bathroom placement enhances flow and keeps daily life running smoothly. 14
Mudroom & Laundry – Everyday Functionality
A practical mudroom with built-in lockers and a desk area sits just off the attached garage, creating a perfect transition zone for shoes, backpacks, and outdoor gear. 15 Nearby, a dedicated laundry room adds another layer of everyday convenience, making chores easier and helping keep main living areas neat and organized. 16

Attached Garage – Space for Vehicles & Storage
The attached **2-car garage (~1,200 sq ft)** keeps vehicles protected from the elements while also offering generous room for tools, outdoor equipment, or hobby gear. 17 Its placement makes daily arrivals and departures effortless, and the extra space ensures you don’t have to sacrifice storage or functionality for style. 18
Dimensions & Comfortable Scale
This home measures about **90′ wide × 50′ deep** with a maximum ridge height of **24′**, giving it a pleasing, substantial footprint that feels balanced and grounded without dominating the landscape. 19 With a slab foundation and standard 2×4 exterior walls (upgradeable to 2×6), the home is both practical to build and comfortable to live in. 20

Specs Summary
- Living Area: ~2,000 sq ft 21
- Bedrooms: 3 22
- Bathrooms: 2 full + 1 half 23
- Garage: 2-car attached (~1,200 sq ft) 24
- Porch: ~703 sq ft wrap-around 25
- Dimensions: ~90′ wide × ~50′ deep 26
- Style: Modern Farmhouse Barndominium 27

Lifestyle Highlights
- Wrap-around porch expands everyday living and boosts connection to the outdoors.
- Open-concept main living area supports family time and entertaining effortlessly.
- Generous kitchen island and walk-in pantry keep daily living comfortable and organized.
- Main-level primary suite feels like a private retreat away from daily bustle.
- Jack & Jill bathroom enhances privacy and ease for secondary bedrooms.
- Mudroom and laundry room add smart, functional everyday zones.

Estimated U.S. Build Cost (USD)
Assuming mid-to-high quality finishes and typical U.S. residential construction costs around $180–$275 per sq ft, building ~2,000 sq ft suggests a rough estimated range of $360,000–$550,000 USD, excluding land, permits, site preparation, utility connections, and regional cost differences. 28

Why This Barndominium Feels So Welcoming
This modern farmhouse barndominium plan blends open living, thoughtful layout, and ample outdoor space into a home that feels comfortable and engaging. The wrap-around porch invites you outside, the open interior connects everyday moments with ease, and the practical zones—like the mudroom and laundry—keep life organized. It’s the kind of place that feels like home the moment you step onto the porch.












