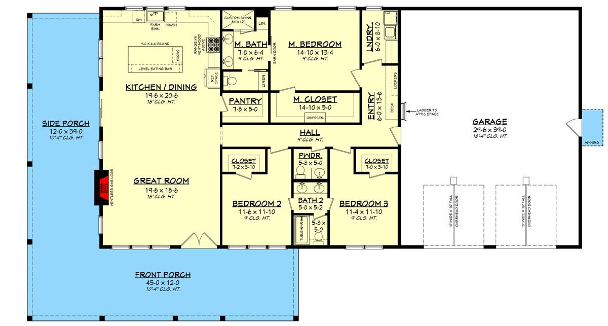
This expansive barndominium-style farmhouse offers approximately 2,000 sq ft of thoughtfully arranged living space. With 3 bedrooms, 2.5 bathrooms, an enormous attached 2-car garage (~1,200 sq ft), and a 10′4″-deep wrap-around porch spanning two sides of the home, it perfectly blends rustic country charm with modern open living. Designed for relaxed everyday life and lively gatherings, this plan creates a warm, welcoming home with both indoor comfort and abundant outdoor living. 0

Exterior Design & Curb Appeal
Striking curb appeal begins with a generous wrap-around porch that stretches across the front and side of the home, inviting you to sit, linger, and enjoy fresh air. 1 The barndominium silhouette combines classic barn inspiration with tasteful farmhouse details — tall rooflines, clean siding, and balanced proportions — giving this plan a strong presence on both rural and suburban settings. 2 The porch’s deep overhangs and wide span provide shade and shelter, reinforcing the home’s carefree country character. 3

Wrap-Around Porch & Outdoor Living
With more than 1,000 sq ft of porch area, this design elevates outdoor living to a cornerstone of daily life. 4 Whether you’re sipping morning coffee, hosting summer get-togethers, or simply enjoying a cool evening breeze, the wrap-around porch is an extension of your indoor space — a great place for outdoor seating, dining, or quiet retreat. 5 Its thoughtful design enhances both curb appeal and livability, making outdoor life feel effortless. 6

Main Living Space — Open & Airy
Step inside to a grand open living area where the great room, dining space, and kitchen flow seamlessly. 7 Soaring 16′ ceilings draw your eye upward and amplify the sense of space, while large windows fill the interior with natural light and views to the porch and yard beyond. 8 A cozy fireplace anchors the great room, creating a focal point for gatherings and relaxed evenings. 9

Kitchen — Functional & Social Heart
The kitchen is thoughtfully crafted for both everyday use and entertaining. 10 A generous island (about 9′ by 4′) offers prep space, seating, and a central spot for catching up with family or friends. 11 Ample counter space and a walk-in pantry keep essentials within reach and organized. 12 Open to the dining and living areas, the kitchen supports effortless connection across the heart of the home. 13

Primary Suite — Private Comfort
The primary bedroom offers a peaceful retreat tucked away from the main living zone. 14 Large windows help bring in natural light and views, while the attached full bathroom features thoughtful fixtures and finishes for everyday convenience. 15 A spacious closet keeps personal items organized, and the room’s placement provides privacy without feeling isolated from the rest of the house. 16

Secondary Bedrooms & Shared Spaces
Two additional bedrooms are clustered near the center of the home, making them perfect for family, guests, or flexible use as a home office or hobby room. 17 These bedrooms share easy access to the full bathroom and convenient laundry area — a practical arrangement that enhances everyday flow. 18 The layout provides comfortable living spaces while maintaining separation between private and shared zones. 19

Half Bath & Practical Zones
A well-placed half bathroom near the main entertaining areas offers guest convenience without interrupting the privacy of the full baths. 20 Utility spaces like laundry and storage are thoughtfully sited to support daily routines without crowding primary living areas. 21

Garage & Storage
The oversized attached 2-car garage (~1,200 sq ft) is a standout feature — more than just a place for vehicles, it’s a spacious workshop and storage zone with two 10′ by 10′ overhead doors. 22 A ladder in the garage leads to additional storage above the main living space, giving you room for seasonal decor, outdoor gear, or future build-out possibilities. 23

Indoor-Outdoor Connectivity & Natural Light
Abundant windows and porch access help blur the line between inside and out, creating bright, uplifting interior spaces that stay connected to nature. 24 Whether you’re relaxing in the great room or stepping out onto the porch, this design makes everyday life feel open and inviting. 25

Dimensions & Key Features
- Total Heated Area: ~2,000 sq ft 26
- Bedrooms: 3 27
- Bathrooms: 2 full + 1 half 28
- Stories: 1 29
- Garage: Attached 2-car (~1,200 sq ft) 30
- Wrap-Around Porch: ~1,008 sq ft (front + side) 31
- Ceiling Heights: ~9′ first floor, ~16′ great room 32
- Exterior Walls: 2×6 construction 33
- Width: ~92′ 34
- Depth: ~52′ 35

Lifestyle Highlights
- Wrap-around porch encourages outdoor living and enhances curb appeal.
- Open living area with vaulted ceilings creates an expansive social hub.
- Kitchen designed for connection with ample prep space and pantry storage.
- Primary suite offers privacy and comfort at home’s edge.
- Large garage and loft storage support DIY projects and storage needs. 36

Estimated U.S. Build Cost (USD)
Assuming typical U.S. residential construction costs of **$180–$260 per sq ft**, building this ~2,000 sq ft barndominium-style farmhouse could range between approximately **$360,000 and $522,000 USD**, excluding land, permits, site preparation, and regional cost variations. 37

Why This Barndominium Plan Works
This barndominium-style farmhouse design combines generous indoor space, strong indoor-outdoor connection, and practical garage/ workshop areas into a home that’s both inviting and highly functional. With vaulted living spaces, abundant porch area, and smart organization of private zones, it’s a plan that feels effortless for everyday living and memorable for entertaining.












