This inviting farmhouse-ranch plan delivers about 2,638 sq ft of heated living space, with 4 bedrooms, 2.5 baths, and the added benefit of two bonus rooms above the garage. It’s designed for flexible, everyday living — perfect for families who want comfort, practicality, and room to grow. 0

Exterior Design & Curb Appeal
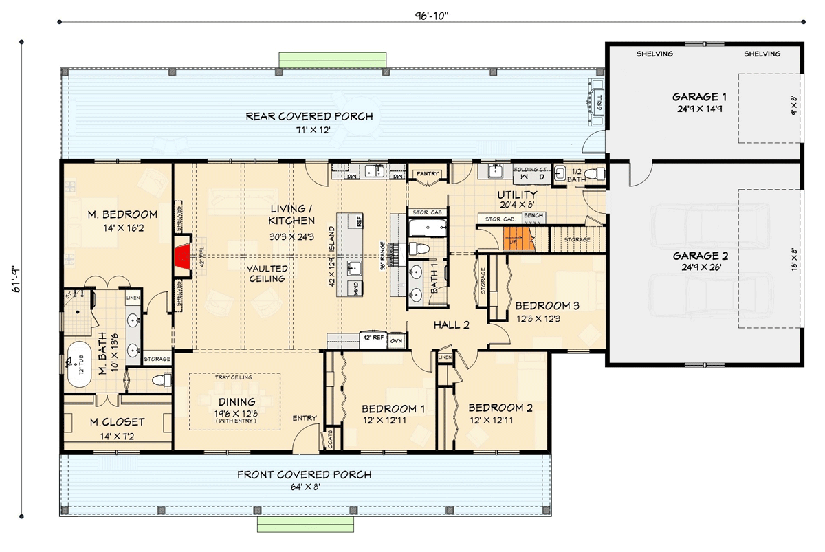
The exterior shows classic farmhouse-ranch charm — modest rooflines, straightforward proportions, and a layout that feels welcoming and down-to-earth. The attached 3-car garage gives plenty of space for vehicles or storage, while keeping the main house facade clean and domestic rather than garage-dominated. 1

Outdoor Living & Covered Rear Porch
One lovely feature of the design is a generous covered rear porch that runs along the back of the house — ideal for outdoor meals, relaxing with family, or enjoying morning coffee while looking out on the yard. 2

Interior Walk-through – Living, Kitchen & Dining
Inside, the layout flows for everyday comfort: common areas blend into one another to support family living and entertaining. The home’s scale offers enough room for living, dining, and kitchen zones that feel open yet cozy, helping to make the most of the 2,638 sq ft footprint. Bedrooms and living spaces are arranged to balance privacy and connection — great for both daily rhythm and special gatherings. (Based on plan layout.) 3

Bedrooms & Bonus Rooms Above Garage
The home includes four main-level bedrooms, which gives enough space for a family — parents, children, guests or a home office depending on needs. 4

Above the garage, two bonus rooms add significant flexibility. These can be finished for a variety of purposes: a home office, craft/hobby studio, kids’ playroom, guest space, media room, or even a quiet retreat. It’s a smart way to get “extra” space without increasing the main footprint — useful as kids grow or needs change. 5

Bathrooms & Utility Spaces
With 2.5 total bathrooms, the plan supports a 4-bedroom layout well — enough facilities for everyday life without overbuilding. The half bath adds convenience, especially for guests or day-to-day use without intruding on private bedroom baths. 6

Garage, Storage & Mechanical Flexibility
The attached 3-car garage offers ample space for vehicles, equipment, storage — a big bonus for many homeowners. On top of that, the plan includes a dedicated mechanical room (in the attic, over the bonus-room level) for HVAC, water heaters, or other systems. This helps keep utilities out of sight and preserves living and storage areas. 7

Specs Summary
- Heated Living Area: ~2,638 sq ft 8
- Bedrooms: 4 (main level) + 2 bonus rooms above garage for optional extra space 9
- Bathrooms: 2 full + 1 half 10
- Garage: 3-car attached 11
- Porch / Outdoor Living: Covered rear porch (details in plan) 12
- Flex/Bonus Space: Two rooms above garage plus attic mechanical space for utilities 13

Lifestyle Highlights
- The bonus-room option gives you flexibility — adapt to changing needs (kids, guests, hobbies, office) without building new.
- The covered rear porch extends living outdoors, giving a shaded, relaxed space for dining, lounging or entertaining.
- Four bedrooms and multiple baths make this plan great for families, guests or multigenerational living.
- The 3-car garage gives practical storage or parking, useful for families, tools, or hobbies.
- The overall size balances generous living space with manageable maintenance and reasonable footprint — ideal for many lots.

Estimated U.S. Build Cost (USD)
Assuming a mid-to-high quality finish and typical U.S. residential construction costs roughly $180–$260 per sq ft, building ~2,638 sq ft suggests a ballpark budget of around $475K–$685K USD. This excludes cost of land, site prep, permits or region-specific price variation.
Why This Plan Shines
This farmhouse-ranch design feels balanced — big enough for comfortable family living, flexible enough to adapt over time, and smartly laid out so nothing feels wasted. The two bonus rooms add long-term value and versatility without increasing the main living footprint, while the covered porch and garage support comfort, convenience, and real-world living. If you want a home that grows with you — that supports kids, hobbies, guests or changing needs — this plan is a strong, practical, and charming choice.












