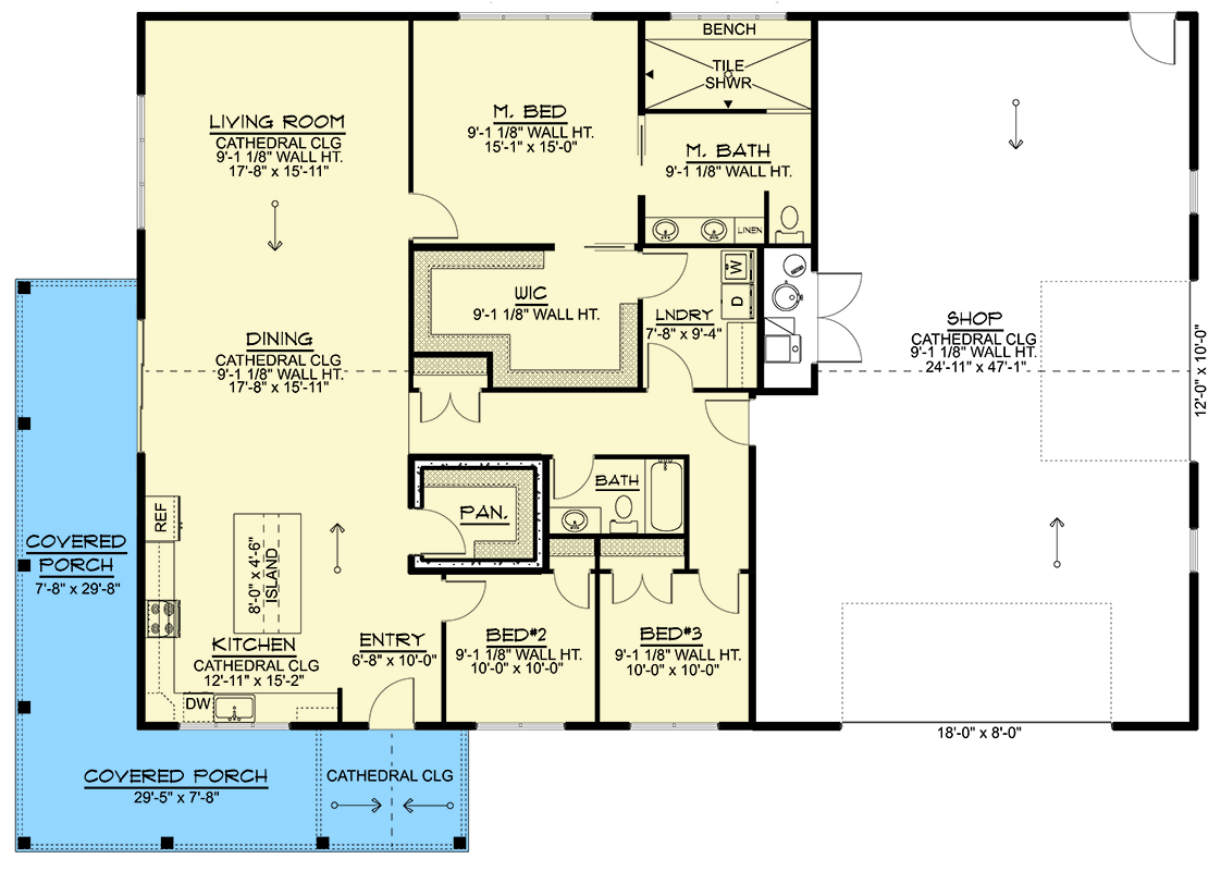
This striking barndominium-style home offers approximately 2,035 sq ft of heated living space wrapped in a modern farmhouse-meets-barndo aesthetic. With 3 bedrooms, 2 full bathrooms, an expansive attached garage with dedicated workshop space, and a generous covered wrap-around porch, this plan blends functional everyday living with style and comfort. The thoughtful layout merges open living with private retreats, making it ideal for families, entertainers, or anyone who values practical design with distinctive character. 0

Exterior & Curb Appeal – Modern Meets Rustic Barn Flair
The exterior of this home embodies a sleek barndominium vibe with modern farmhouse influence. Clean siding, a dark metal roof, and layered architectural details provide crisp visual appeal. 1 A large covered wrap-around porch echoes classic country charm, inviting quiet mornings outdoors or relaxed evenings with friends and family. 2 The side-entry garage helps keep the front façade feeling clean and welcoming while still providing serious functionality. 3

Wrap-Around Porch – Everyday Outdoor Life
The approximately 480 sq ft wrap-around covered porch is one of this home’s defining lifestyle features. 4 Stretching around the exterior, it creates multiple outdoor living zones — perfect for rocking chairs, al fresco meals, or morning coffee overlooking the yard. 5 This porch becomes a natural extension of the indoor spaces and heightens the home’s connection to the surrounding landscape. 6

Main Living Areas – Open, Bright & Airy
Stepping inside from the porch, you’re welcomed into an open-concept living area that flows effortlessly into the kitchen and dining zones. 7 Vaulted volume and large windows fill the shared spaces with natural light, while a dramatic two-story great room fosters a sense of connection throughout the home. 8 It’s a layout that feels both expansive and inviting — ideal for everyday family life and lively gatherings alike. 9

Kitchen & Dining – Designed with Ease
The kitchen is at the heart of the home’s daily rhythm, with thoughtful work zones and a well-placed layout that encourages casual seating and social interaction. 10 It shares an open line of sight to the dining area and great room, so cooking and entertaining feel seamless. A walk-in butler’s pantry boosts storage and organization, helping keep counters tidy and meals flowing smoothly. 11

Primary Suite – Quiet & Comfortable Retreat
The primary bedroom suite resides on the main level and serves as a peaceful sanctuary. 12 Its generous proportions provide comfort and ease at the end of the day, and the nearby full bathroom ensures privacy and flow. This placement supports everyday comfort while keeping the heart of the home light and vibrant. 13

Secondary Bedrooms – Practical & Restful
Two secondary bedrooms are positioned away from the primary suite, giving each zone a sense of autonomy and privacy. 14 These rooms are well sized for children, guests, or flexible use — such as a home office or hobby room. They connect to a full bathroom that also serves visitors, ensuring convenience without crowding the main living areas. 15

Main Level Laundry – Everyday Efficiency
A dedicated laundry room on the main floor adds practical convenience. 16 Easily accessible from both the living areas and the bedrooms, it helps keep daily routines organized and reduces clutter throughout the home. 17

Garage & Dedicated Workshop – Big Space for Gear & Projects
This plan’s standout feature is its massive attached side-entry garage, spanning roughly 1,385 sq ft and designed to accommodate one, two, or even three vehicles, depending on configuration needs. 18 A dedicated workshop area within the garage provides abundant space for tools, hobbies, or projects — ideal for DIY enthusiasts or families needing organized storage. 19

Indoor-Outdoor Flow – Porch & Living Connection
From the great room and dining area, easy access to the covered wrap-around porch encourages fluid indoor-outdoor living. 20 Whether hosting a summer barbecue, relaxing with friends, or enjoying peaceful solitude with a book, these transitions enhance comfort and connection to nature. 21

Dimensions & Structural Details
This home measures about **79′ wide × 56′ deep** with a **max ridge height of 22′ 2″** — a balanced footprint that feels spacious yet comfortable on a typical lot. 22 Standard slab foundation and 9′ ceiling heights throughout the main floor support efficient construction and generous living volumes. 23 Exterior walls are framed with 2×6 wood, adding structural integrity and insulation performance. 24

Specs Summary
- Total Heated Area: ~2,035 sq ft 25
- Bedrooms: 3 26
- Bathrooms: 2 full 27
- Garage: ~1,385 sq ft attached side-entry 28
- Wrap-Around Porch: ~480 sq ft 29
- Dimensions: ~79′ × ~56′ 30
- Ceiling Heights: 9′ main floor 31
Lifestyle Highlights
- An open, two-story great room that fosters connection and natural light.
- A generous wrap-around porch that extends everyday living outdoors.
- Split bedroom layout that balances privacy with shared living space.
- A large garage with dedicated workshop space for hobbies, vehicles, and storage.
- Practical pantry and laundry layouts that support efficient daily routines.

Estimated U.S. Build Cost (USD)
Assuming mid-to-high quality finishes and typical U.S. residential construction costs of about $170–$260 per sq ft, building ~2,035 sq ft suggests a rough estimated range of **$346,000–$529,000 USD**, excluding land, permits, site preparation, and regional cost variation. 32

Why This Modern Barndominium Works
This modern barndominium plan combines exterior charm, smart interior flow, and practical spaces that fit real-life needs. Its striking wrap-around porch, bright open living core, flexible workshop, and thoughtful bedroom placement make it both beautiful and functional — perfect for families who want space, style, and everyday comfort all in one thoughtfully designed home.












